по вопросам аренды помещений:
Старт продаж площадей в торгово-офисном центре нового формата «Сити Парк» в Чите
в районе КСК
До конца июня рассрочка на покупку помещения до 1,5 лет
Торговый офисный центр охватит 4 этажа здания. Объект общей площадью свыше 5000м² метров благодаря удобным офисам с одной стороны станет центром деловой активности и торговли
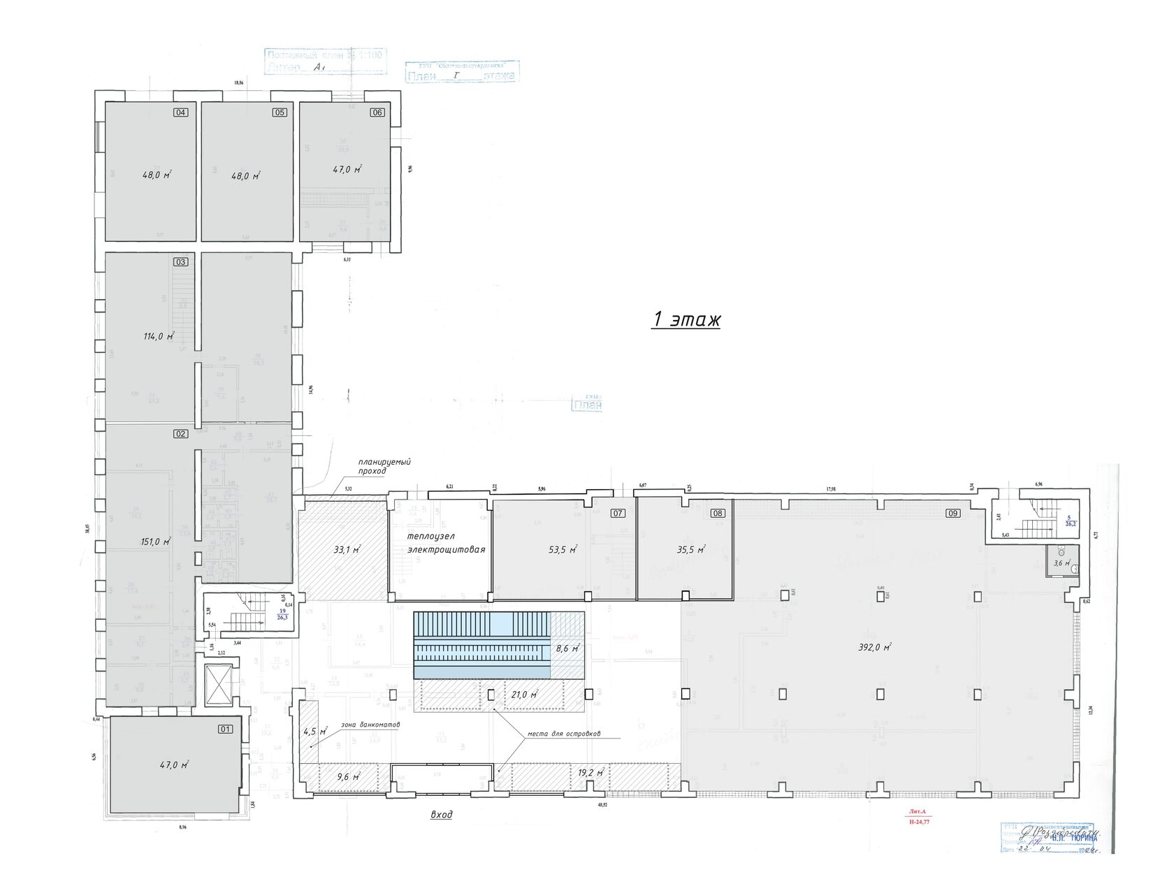
Планировки этажей
1 ЭТАЖ
Нажмите, чтобы увеличить
2 ЭТАЖ
Нажмите, чтобы увеличить
3 ЭТАЖ
Нажмите, чтобы увеличить
4 ЭТАЖ
Нажмите, чтобы увеличить
5 ЭТАЖ
Нажмите, чтобы увеличить
Центр станет развитой сферой услуг торговли. Будут размещены рестораны, кафетерии, развлекательные зоны, химчистка, парикмахерская, салон красоты, пекарня, аптека и многое другое.
13,1м²
Площади от 13,1 квадратных метров. Возможность работы с новым проектом для всех желающих открывается уже сегодня.
"Мы уже бронируем офисные помещения и торговые площади, тщательно выбирая виды деятельности, чтобы они не пересекались и подходили под концепцию центра. Старт продаж уже скоро. Первых покупателей ждет сюрприз в виде привлекательных цен»"
ПРИЯТНЫЙ БОНУС
Бонус для тех, кто приобретает помещение для сдачи в аренду - поиск арендаторов руководство торгово-офисного центра оставляет за собой, а также даст возможность воспользоваться одной из франшиз местным предпринимателям. Для тех, кто не готов развивать бизнес-идею с нуля или не хочет рисковать стартовым капиталом, бизнес по франшизе может стать перспективным вариантом.
Преимущества локации очевидны
Один из них высокая концентрация жителей. Объект будет находиться в центре микрорайона с видом на площадь Труда. Также среди плюсов - простая транспортная доступность и просторная парковка.
Проект будет реализован двумя очередями – в 2022 году первая, в 2023 – вторая
Масштабным проектом компания планирует управлять самостоятельно.

Продаваться будет лишь часть площадей, поэтому предложения ограничены.


Все подробности можно узнать по телефону:

714-777, 79248114777